上海多多28机电设备工程技术有限公司 Language

树脂行业

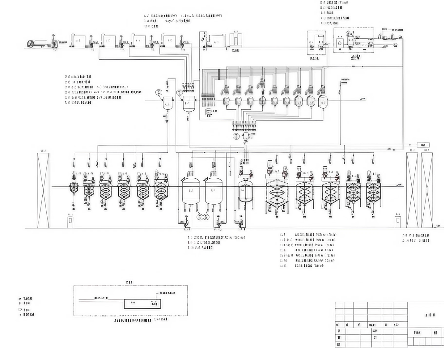
当前位置 :首页 > 行业应用 > 行业解决方案 > 树脂行业

树脂行业

水性聚氨酯是以水代替有机溶剂作为分散介质的新型聚氨酯体系,也称水分散聚氨酯、水系聚氨酯或水基聚氨酯。水性聚氨酯以水为溶剂,无污染、安全可靠、机械性能优良、相容性好、易于改性等优点。

主要设备及功能
其他行业